Terminal Restroom Remodel
Terminal Restroom Remodel
Project Rationale
The airport terminal was built in 1967. The restrooms were dated, small, and because of age, could not be brought into compliance with the American with Disabilities Act of 1990 (ADA).
The Federal Aviation Administration offered grants to design and build new restrooms in the same location, but with much more space and modern amenities. When complete, the restrooms will be fully compliant with ADA and will serve our passengers and customers much better.
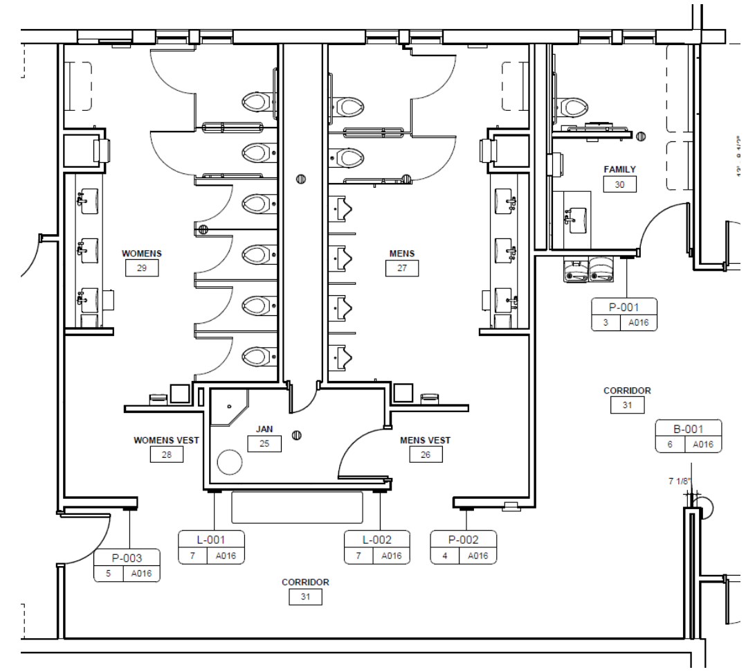
Design Phase
The design was performed by DWL Architects of Phoenix. DWL has extensive airport terminal experience and their restroom plan for GCN is ambitious.
Because the terminal is now over 50 years old, we performed a survey to determine if the building has an historical significance. It does not, and therefore ADOT may renovate the facility without any restrictions.
Construction Phase
Construction began in Fall 2020, but is currently suspended. We apologize for the inconvenience of having to use portable restrooms. This page will be updated with new information when the project re-starts later in the year.
What to Expect
When you arrive at the airport, please use the main (center) entrance or the north entrance. The south entrance is closed for construction. You should also be prepared to use a typical portable restroom. You may want to bring moist towelettes and hand sanitizer because we do not have running water at the portable restrooms.
Project Cost
Design: $250,000
Construction: Engineer’s estimate is $700,000
Project funded by an Airport Improvement Program grant from the FAA.
